About the object:
Location: Sochi, Ruchey Vidny — the famous “Sochi Rublyovka”
Project: ArchiNova flagship development
Style: Bionic architecture integrated into the natural landscape
Waves Village on Ruchey Vidny — Architecture of Panoramas, Privacy, and Natural Harmony

Project Concept:

Waves Village is an architectural project born from a deep dialogue with the nature of Ruchey Vidny — a place renowned for its stunning sea panoramas and harmoniously developed surroundings.

Key Principles:

  • Panoramic sea views from every functional area
  • Privacy and openness — thanks to thoughtful placement within the natural slope
  • Ergonomic integration into the mountain landscape
  • Flowing white bionic forms — echoing the silhouette of waves, highlighted by frameless glass panels
  • Natural materials — quartzite and eco-composite slatted panels, resistant to Sochi’s humid climate

Project Feature:

Waves Village is located higher up the slope, just across the road from our villa “Alicante”, which, despite its striking architecture, partly obstructed the sea view.
To preserve the openness and maximize the panoramic experience, we elevated the first floor of the villas by 6 meters, creating a high podium with parking, a pool, technical spaces, and an elevator connecting the entrance level with the living area.

This design allowed us to form a harmonious composition of spaces, crowned by a private panoramic patio terrace — a sanctuary of seclusion with a sea view.

Waves Village Philosophy:

  • In every villa, we aimed not only to maintain harmony with the environment but also to create a feeling of absolute privacy.
  • The architecture is designed so that future residents feel sheltered from neighboring eyes, while remaining open to nature, the panorama, and the sea.

The Result:

Waves Village is a space of freedom, beauty, and comfort — where architecture becomes part of life in harmony with nature.
Villa Waves
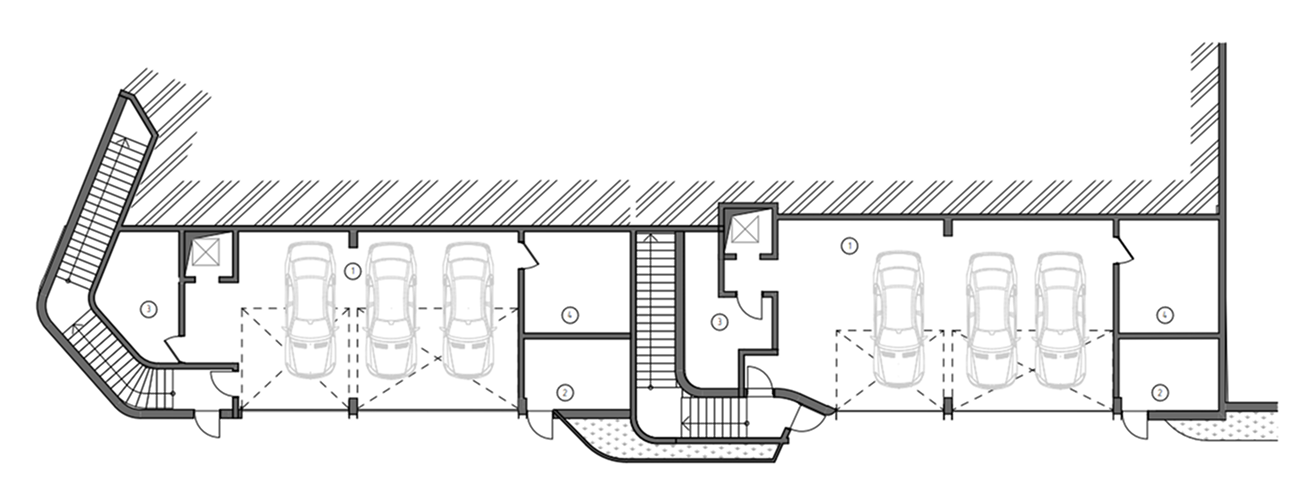
Plans

Explication 1st floor
1.Hall
3.Technical room
4.Bathroom
5.Storage room
6.Wardrobe
7.Bathroom
8.Kitchen-living room
9.Guest bedroom

Explication 2nd floor
1. Corridor
3. Bedroom 1
4. Master Bedroom
5. Wardrobe
6. Bathroom
7. Storeroom
8. Laundry
9. Bathroom
10. Bedroom 3
11. Bedroom 2

Explication ground floor
1.Garage
2.Boiler room
3.Storage room
4.Technical room
Time to start creating your unique space together!
Are you ready?