Об объекте:
Локация: Сочи, Ручей Видный — знаменитая «Сочинская Рублёвка»
Проект: Девелоперский флагман ArchiNova
Стиль: Бионика, интеграция в природный ландшафт
Waves Village на Ручей Видном — архитектура панорам, приватности и природной гармонии

Идея проекта:

Waves Village — авторский архитектурный проект, рожденный в диалоге с природой Ручья Видного — места с захватывающими морскими панорамами и гармоничной современной застройкой.

Ключевые принципы:

  • Панорамные виды на море из всех функциональных зон
  • Приватность и свобода одновременно — благодаря продуманной посадке в рельеф
  • Эргономичная интеграция в природный горный ландшафт
  • Пластичные белоснежные бионические формы — как силуэт волн, подчеркнутые малерованными стеклопакетами
  • Природные материалы — кварцит и реечные панели из ДПК, устойчивые к влажному климату Сочи

Особенность проекта:

Waves Village расположен выше по склону, через дорогу от нашей виллы «Аликанте», которая, несмотря на свою архитектурную выразительность, частично закрывала панораму моря.
Чтобы сохранить эффект открытого пространства и подчеркнуть панорамы, мы приподняли первый этаж вилл на 6 метров, создав высокий стилобат с парковкой, бассейном, техническими помещениями и лифтом, соединяющим уровень въезда с жилой зоной.

Так родился гармоничный ансамбль пространств с приватной видовой террасой-патио — местом абсолютного уединения с морем.

Философия Waves Village:

  • В каждом доме мы стремились не только сохранить гармонию с окружающим пространством, но и создать ощущение абсолютной приватности.
  • Архитектура проекта спроектирована так, чтобы будущие жители могли чувствовать себя защищённо от соседских взглядов и одновременно открыто — к природе, к панорамам, к морю.

Результат:

Waves Village — это пространство свободы, красоты и комфорта, где архитектура становится частью жизни в гармонии с природой.
Villa Waves
Villa Waves
Об объекте:
Локация: Сочи, Ручей Видный — знаменитая «Сочинская Рублёвка»
Проект: Девелоперский флагман ArchiNova
Стиль: Бионика, интеграция в природный ландшафт

Waves Village на Ручей Видном — архитектура панорам, приватности и природной гармонии

Идея проекта:

Waves Village — авторский архитектурный проект, рожденный в диалоге с природой Ручья Видного — места с захватывающими морскими панорамами и гармоничной современной застройкой.

Ключевые принципы:

  • Панорамные виды на море из всех функциональных зон
  • Приватность и свобода одновременно — благодаря продуманной посадке в рельеф
  • Эргономичная интеграция в природный горный ландшафт
  • Пластичные белоснежные бионические формы — как силуэт волн, подчеркнутые малерованными стеклопакетами
  • Природные материалы — кварцит и реечные панели из ДПК, устойчивые к влажному климату Сочи

Особенность проекта:

Waves Village расположен выше по склону, через дорогу от нашей виллы «Аликанте», которая, несмотря на свою архитектурную выразительность, частично закрывала панораму моря.
Чтобы сохранить эффект открытого пространства и подчеркнуть панорамы, мы приподняли первый этаж вилл на 6 метров, создав высокий стилобат с парковкой, бассейном, техническими помещениями и лифтом, соединяющим уровень въезда с жилой зоной.

Так родился гармоничный ансамбль пространств с приватной видовой террасой-патио — местом абсолютного уединения с морем.

Философия Waves Village:

  • В каждом доме мы стремились не только сохранить гармонию с окружающим пространством, но и создать ощущение абсолютной приватности.
  • Архитектура проекта спроектирована так, чтобы будущие жители могли чувствовать себя защищённо от соседских взглядов и одновременно открыто — к природе, к панорамам, к морю.

Результат:

Waves Village — это пространство свободы, красоты и комфорта, где архитектура становится частью жизни в гармонии с природой.
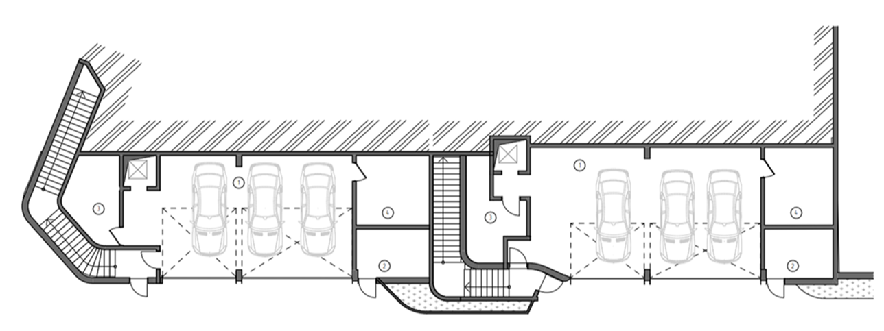
Планировки

Экспликация 1 этаж
1.Холл
3.Тех.помещение
4.С/у
5.Кладовая
6.Гардероб
7.С/у
8.Кухня-гостиная
9.Гостевая спальня

Экспликация 2 этаж
1.Коридор
3.Спальня 1
4.Мастер спальня
5.Гардероб
6.С/у
7.Кладовая
8.Постирочная
9.С/у
10.Спальня 3
11.Спальня 2

Экспликация цокольный этаж
1.Гараж
2.Котельная
3.Кладовая
4.Тех.комната
Время начать создавать Ваше уникальное пространство вместе!
Вы готовы?