Авторы: Кузьма Антон, Эмин Кюлян

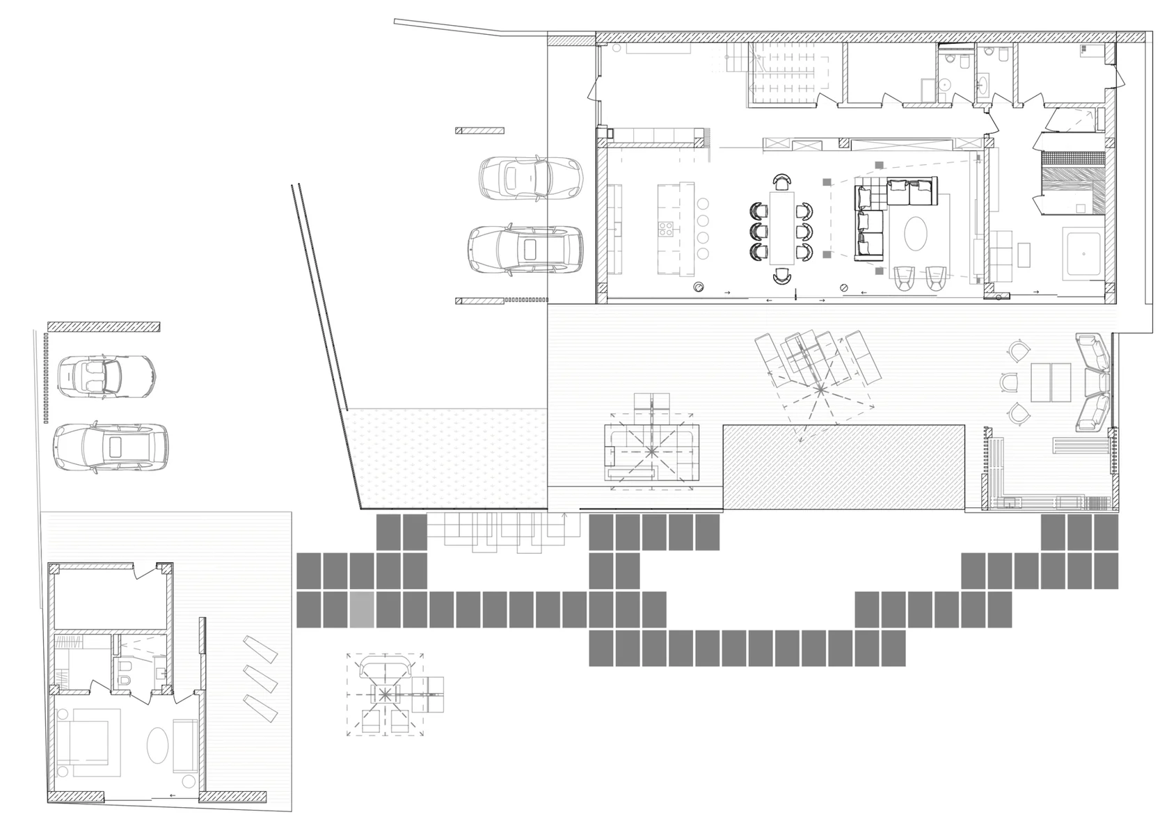
Индивидуальный жилой дом расположен в городе Сочи. Территория проектирования обусловлена перепадом высот 11 метров и ориентацией на благоприятную юго-западную сторону света.

Участок расположен на берегу моря в окружении лесного массива, на высоте 35,5 метров над уровнем моря. Данные внешние факторы послужили выбором стиля минимализм с панорамным остеклением, стирающим грань между внутренним пространством и природой. Все жилые помещения ориентированы на юг, юго-запад.

Рельеф участка имеет достаточно сильный уклон с задней стороны дома – поэтому было принято заглубить первый этаж в грунт с северо-востока. Территория участка спроектирована террасированием в 2 уровня с перепадом высот 1,5 м. На верхнем уровне расположен жилой дом – на нижнем гостевой домик. Это позволило снизить нагрузку на нижнюю подпорную стену, разделить хозяйскую зону от гостевой и гармонично вписать благоустройство участка в природный ландшафт местности. Эргономика пространства выполнена таким образом, чтобы каждый квадратный метр выполнял свою функцию. На первом этаже расположена просторная кухня-гостиная, СПА-зона, летняя беседка, кладовые и технические помещения. На втором этаже запроектированы спальни, кабинет, гардеробные с санузлами.

Основной концепцией проекта благоустройства и озеленения является его пейзажность, многоярусность архитектоники растений, с каждой новой точки открываются различные видовые характеристики объекта. Плавность линий, изящность очертаний гармония цвета и формы прослеживаются на протяжении всей территории, и являются главной составляющей проекта. Декоративные группы подобраны на контрасте морфологических признаков растений. В проекте предстояло разрешить вопрос озеленения, продолжить и дополнить существующий пейзаж, вечнозелеными и листопадными, декоративными формами.
Villa Quiet Harbor
Villa Quiet Harbor
Авторы: Кузьма Антон, Эмин Кюлян

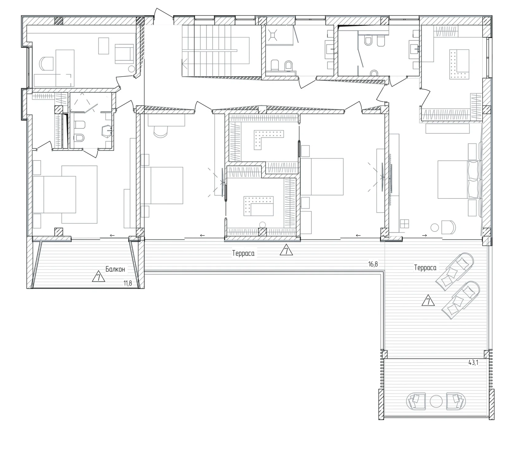
Индивидуальный жилой дом расположен в городе Сочи. Территория проектирования обусловлена перепадом высот 11 метров и ориентацией на благоприятную юго-западную сторону света.

Участок расположен на берегу моря в окружении лесного массива, на высоте 35,5 метров над уровнем моря. Данные внешние факторы послужили выбором стиля минимализм с панорамным остеклением, стирающим грань между внутренним пространством и природой. Все жилые помещения ориентированы на юг, юго-запад.

Рельеф участка имеет достаточно сильный уклон с задней стороны дома – поэтому было принято заглубить первый этаж в грунт с северо-востока. Территория участка спроектирована террасированием в 2 уровня с перепадом высот 1,5 м. На верхнем уровне расположен жилой дом – на нижнем гостевой домик. Это позволило снизить нагрузку на нижнюю подпорную стену, разделить хозяйскую зону от гостевой и гармонично вписать благоустройство участка в природный ландшафт местности. Эргономика пространства выполнена таким образом, чтобы каждый квадратный метр выполнял свою функцию. На первом этаже расположена просторная кухня-гостиная, СПА-зона, летняя беседка, кладовые и технические помещения. На втором этаже запроектированы спальни, кабинет, гардеробные с санузлами.

Основной концепцией проекта благоустройства и озеленения является его пейзажность, многоярусность архитектоники растений, с каждой новой точки открываются различные видовые характеристики объекта. Плавность линий, изящность очертаний гармония цвета и формы прослеживаются на протяжении всей территории, и являются главной составляющей проекта. Декоративные группы подобраны на контрасте морфологических признаков растений. В проекте предстояло разрешить вопрос озеленения, продолжить и дополнить существующий пейзаж, вечнозелеными и листопадными, декоративными формами.
Время начать создавать Ваше уникальное пространство вместе!
Вы готовы?