Авторский коллектив:
Главный архитектор: Антон Кузьма
Архитектор проекта: Антон Кузьма
Конструктивные решения: Иван Милов
Дизайн интерьера: Виктория Маляр
Инженерные сети: Михаил Янкович
Руководитель стройки: Антон Шевяков
Видео обзор: Эмин Кюлян
Об объекте:
Стиль: минимализм
Площадь: 300 кв.м.
Год: 2018
Расположение: г.Сочи
Сложный рельеф при проектировании участка — это большой плюс.
Во-первых, в таком случае можно реализовать интересные решения в архитектуре здания. Во-вторых, человек по своей природе тяготеет не к ровным поверхностям, а к ритмам. Участок с перепадом высот в 11 метров террассирован в 3 уровня:
-на верхнем уровне расположена входная группа, парковка и все спальни с максимальными панорамными видами на море.
-на среднем уровне кухня-гостинная-столовая, хаммам с выходом на благоустроенную площадку перед домом с бассейном и зоной патио,
-на нижнем — вспомогательное здание, где размещен спортзал с двумя спальнями и санузлами, а также клумбы для озеленения.

Эксплуатируемая кровля нижнего строения позволила увеличить зону патио на 80 м² и добавить приватности видовых характеристик на южную панораму Черного моря.

Благодаря тому, что перед домом было оставлено достаточно места, вместилась большая парковка на 4 машины, а также входная зона с навесом и благоустройства.
Данный проект мы сопровождали от эскиза до реализации, что позволило выполнить все идейные, технические решения максимально качественно, в соответствии с чертежами и визуализации
Villa Freedom
Этот дом мы проектировали в комплексе с дизайном интерьера
Villa Freedom
Авторский коллектив:
Главный архитектор: Антон Кузьма
Архитектор проекта: Антон Кузьма
Конструктивные решения: Иван Милов
Дизайн интерьера: Виктория Маляр
Инженерные сети: Михаил Янкович
Руководитель стройки: Антон Шевяков
Видео обзор: Эмин Кюлян
Об объекте:
Стиль: минимализм
Площадь: 300 кв.м.
Год: 2018
Расположение: г.Сочи
Сложный рельеф при проектировании участка — это большой плюс.
Во-первых, в таком случае можно реализовать интересные решения в архитектуре здания. Во-вторых, человек по своей природе тяготеет не к ровным поверхностям, а к ритмам. Участок с перепадом высот в 11 метров террассирован в 3 уровня:
-на верхнем уровне расположена входная группа, парковка и все спальни с максимальными панорамными видами на море.
-на среднем уровне кухня-гостинная-столовая, хаммам с выходом на благоустроенную площадку перед домом с бассейном и зоной патио,
-на нижнем — вспомогательное здание, где размещен спортзал с двумя спальнями и санузлами, а также клумбы для озеленения.

Эксплуатируемая кровля нижнего строения позволила увеличить зону патио на 80 м² и добавить приватности видовых характеристик на южную панораму Черного моря.

Благодаря тому, что перед домом было оставлено достаточно места, вместилась большая парковка на 4 машины, а также входная зона с навесом и благоустройства.
Данный проект мы сопровождали от эскиза до реализации, что позволило выполнить все идейные, технические решения максимально качественно, в соответствии с чертежами и визуализации
Этот дом мы проектировали в комплексе с дизайном интерьера
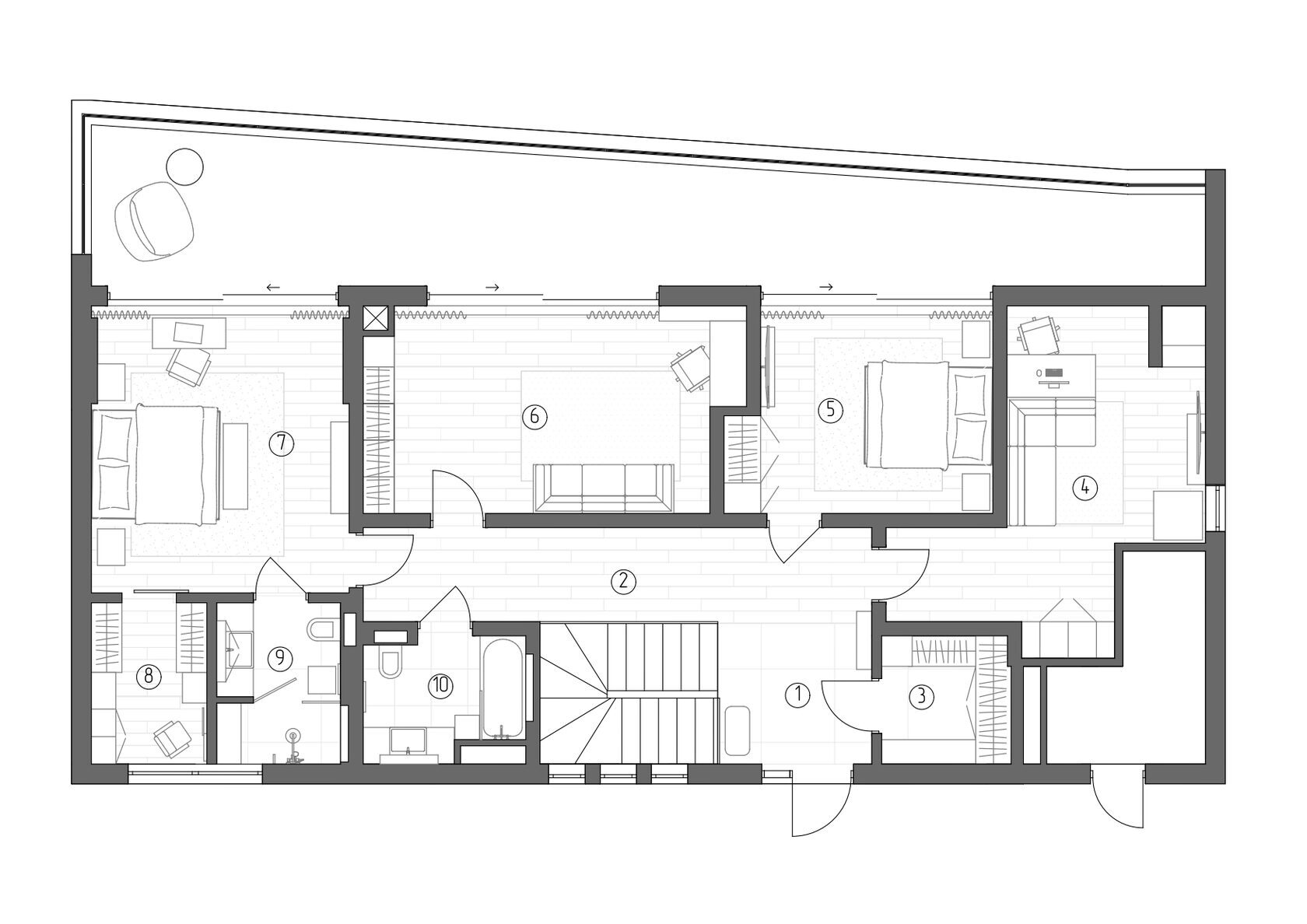
Планировки

Экспликация
  1. Гостиная
  2. Кухня-столовая
  3. Кладовая
  4. Кладовая
  5. Хамам

Экспликация
  1. Прихожая
  2. Коридор
  3. Гардероб
  4. Кабинет
  5. Гостевая спальня
  6. Детская
  7. Мастер-спальня
  8. Гардероб МС
  9. С/у МС
  10. С/у
Время начать создавать Ваше уникальное пространство вместе!
Вы готовы?