Villa Aura — гармония с природой и приватность с видом на море.

Villa Aura — это архитектурный проект, созданный с особым вниманием к природному контексту и приватности жизни. Вилла расположена на склоне с перепадом высот до 8 метров, в сформированной городской застройке, с потрясающими панорамными видами на Олимпийский парк, стадион «Фишт» и морской горизонт.

Главной задачей было спроектировать дом так, чтобы каждая зона оставалась уединённой, защищённой от взглядов соседей, и в то же время максимально открытой к природным ландшафтам. Мы добились этого за счёт продуманной посадки здания в рельеф и использования выразительных форм.
Об объекте:
Расположение: Сочи, федеральная территория Сириус
Площадь дома: 300 м²
Площадь участка: 8 соток
Стиль: Бионический минимализм
Архитектура виллы выполнена в современном стиле бионики: плавные, пластичные линии, натуральные материалы на фасаде, крупные панорамные витражи, стирающие границу между внутренним пространством и окружающей природой.

На подземном уровне расположен хозблок с парковкой, техническими помещениями и складскими зонами — функциональный тыл, обеспечивающий комфорт и порядок в доме.

Villa Aura — это пространство, в котором современный человек может почувствовать себя частью природы, сохраняя при этом комфорт, эстетику и приватность.
Villa Aura
Villa Aura
Об объекте:
Расположение: Сочи, федеральная территория Сириус
Площадь дома: 300 м²
Площадь участка: 8 соток
Стиль: Бионический минимализм

Villa Aura — гармония с природой и приватность с видом на море.

Villa Aura — это архитектурный проект, созданный с особым вниманием к природному контексту и приватности жизни. Вилла расположена на склоне с перепадом высот до 8 метров, в сформированной городской застройке, с потрясающими панорамными видами на Олимпийский парк, стадион «Фишт» и морской горизонт.

Главной задачей было спроектировать дом так, чтобы каждая зона оставалась уединённой, защищённой от взглядов соседей, и в то же время максимально открытой к природным ландшафтам. Мы добились этого за счёт продуманной посадки здания в рельеф и использования выразительных форм.

Архитектура виллы выполнена в современном стиле бионики: плавные, пластичные линии, натуральные материалы на фасаде, крупные панорамные витражи, стирающие границу между внутренним пространством и окружающей природой.

На подземном уровне расположен хозблок с парковкой, техническими помещениями и складскими зонами — функциональный тыл, обеспечивающий комфорт и порядок в доме.

Villa Aura — это пространство, в котором современный человек может почувствовать себя частью природы, сохраняя при этом комфорт, эстетику и приватность.
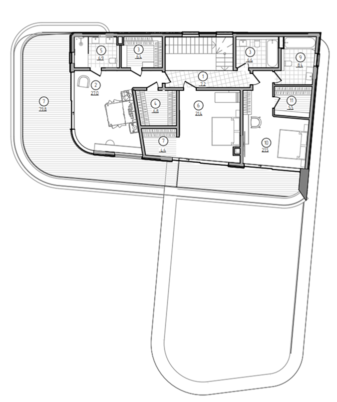
Планировки

Экспликация 1 этажа жилого дома
  1. Прихожая
  2. Гардероб
  3. Кухня-гостиная
  4. Постирочная
  5. Котельная
  6. Гостевая спальня
  7. С/у
Экспликация 1 этажа гостевого дома
  1. Комната отдыха
  2. Гостевая
  3. С/у
  4. Предбанник
  5. Сауна
  6. Зона барбекю

Экспликация 2 этажа жилого дома
1.Холл
2.Мастер-спальня
3.Гардероб
3.С/у
4.Гардероб
5.С/у
6.Спальня 1
7.Гардероб
8.Терраса
9.С/у
10.Спальня 2
11.Гардероб

Время начать создавать Ваше уникальное пространство вместе!
Вы готовы?