Авторский коллектив:
Главный архитектор: Антон Кузьма
Архитектор проекта: Антон Кузьма
Видео обзор: Эмин Кюлян
Об объекте:
Стиль: минимализм
Расположение: г. Сочи
Год: 2017
Площадь: 450 кв.м.
Этот дом мы проектировали в комплексе с дизайном интерьера
1 этаж:

  • кухня;
  • столовая;
  • гостиная (единым пространством);
  • постирочная;
  • кладовая;
  • санузел;
  • кабинет;

2 этаж:

  • 1 мастер-спальня со своим гардеробом, балконом и санузлом;
  • детские спальни с общим гардеробом, балконом и санузлом;
  • котельная;
  • эксплуатируемая кровля с беседкой (если позволяют видовые характеристики).
Во всех комнатах установлены панорамные окна, поэтому дом максимально наполнен светом и воздухом. В гостиной-кухне установили витражи-слайдеры, которые в летний период можно открыть и создать единое пространство с улицей. Для большего эффекта стирания границ мы отделали террасу и внутренний интерьер кухни-гостиной одним и тем же материалом — керамогранитом с имитацией древесной текстуры, который также отлично сочетается с фасадами из фиброцементных панелей.
Уникальность ансамбля домов заключается в композиционной целостности, эргономике и минимализмом архитектуры в условиях компактных габаритов участков. В качестве исходных данных мы получили 2 участка общей площадью 9 соток. Нам удалось расположить здания таким образом, что оба дома имеют все необходимые функциональные зоны для комфортной загородной жизни семьи из 5 человек. Небольшие габариты участков нам удалось компенсировать наличием эксплуатируемой кровли с роскошными видами на море, горные пейзажи и панораму города. Паркинг на 2 машино-места с прекрасными видовыми характеристиками является эксплуатируемой кровлей уютной зоны патио на нижнем уровне участка. При проектировании в отделке фасадов был скомбинирован вентилируемый фасад с материалами, имитирующими природные фактуры и декоративная штукатурка. Это позволило нам создать архитектуру в единой стилистике с соседними зданиями, за счет этого он гармонично вписывается в жилой квартал и горный пейзаж.
Villa Alicante
Villa Alicante
Авторский коллектив:
Главный архитектор: Антон Кузьма
Архитектор проекта: Антон Кузьма
Видео обзор: Эмин Кюлян
Об объекте:
Стиль: минимализм
Расположение: г. Сочи
Год: 2017
Площадь: 450 кв.м.
Этот дом мы проектировали в комплексе с дизайном интерьера
1 этаж:

  • кухня;
  • столовая;
  • гостиная (единым пространством);
  • постирочная;
  • кладовая;
  • санузел;
  • кабинет;

2 этаж:

  • 1 мастер-спальня со своим гардеробом, балконом и санузлом;
  • детские спальни с общим гардеробом, балконом и санузлом;
  • котельная;
  • эксплуатируемая кровля с беседкой (если позволяют видовые характеристики).
Во всех комнатах установлены панорамные окна, поэтому дом максимально наполнен светом и воздухом. В гостиной-кухне установили витражи-слайдеры, которые в летний период можно открыть и создать единое пространство с улицей. Для большего эффекта стирания границ мы отделали террасу и внутренний интерьер кухни-гостиной одним и тем же материалом — керамогранитом с имитацией древесной текстуры, который также отлично сочетается с фасадами из фиброцементных панелей.
Уникальность ансамбля домов заключается в композиционной целостности, эргономике и минимализмом архитектуры в условиях компактных габаритов участков. В качестве исходных данных мы получили 2 участка общей площадью 9 соток. Нам удалось расположить здания таким образом, что оба дома имеют все необходимые функциональные зоны для комфортной загородной жизни семьи из 5 человек. Небольшие габариты участков нам удалось компенсировать наличием эксплуатируемой кровли с роскошными видами на море, горные пейзажи и панораму города. Паркинг на 2 машино-места с прекрасными видовыми характеристиками является эксплуатируемой кровлей уютной зоны патио на нижнем уровне участка. При проектировании в отделке фасадов был скомбинирован вентилируемый фасад с материалами, имитирующими природные фактуры и декоративная штукатурка. Это позволило нам создать архитектуру в единой стилистике с соседними зданиями, за счет этого он гармонично вписывается в жилой квартал и горный пейзаж.
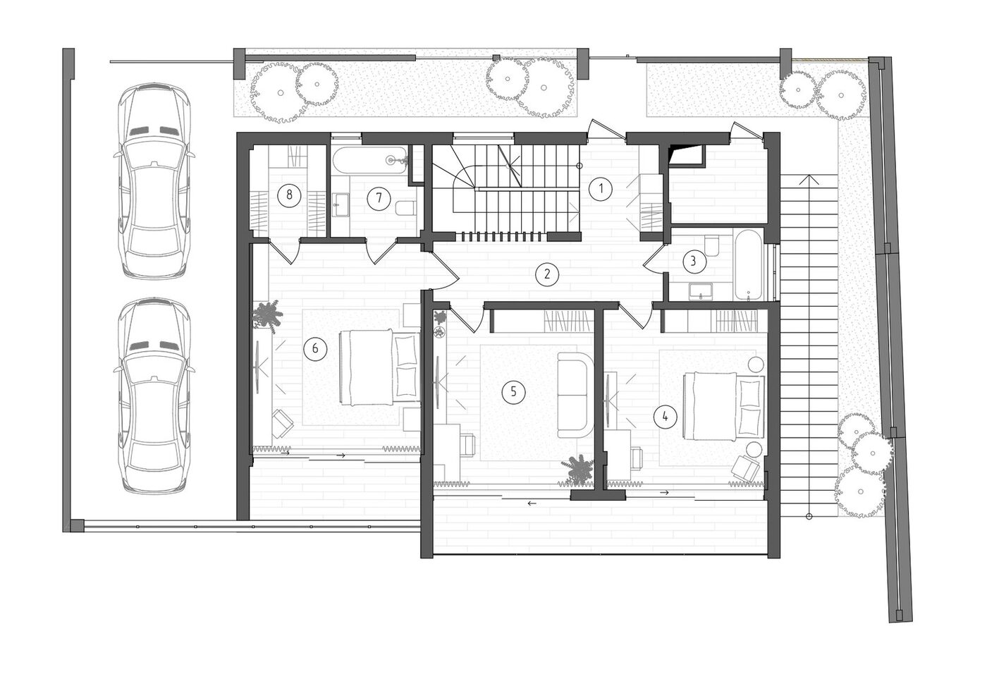
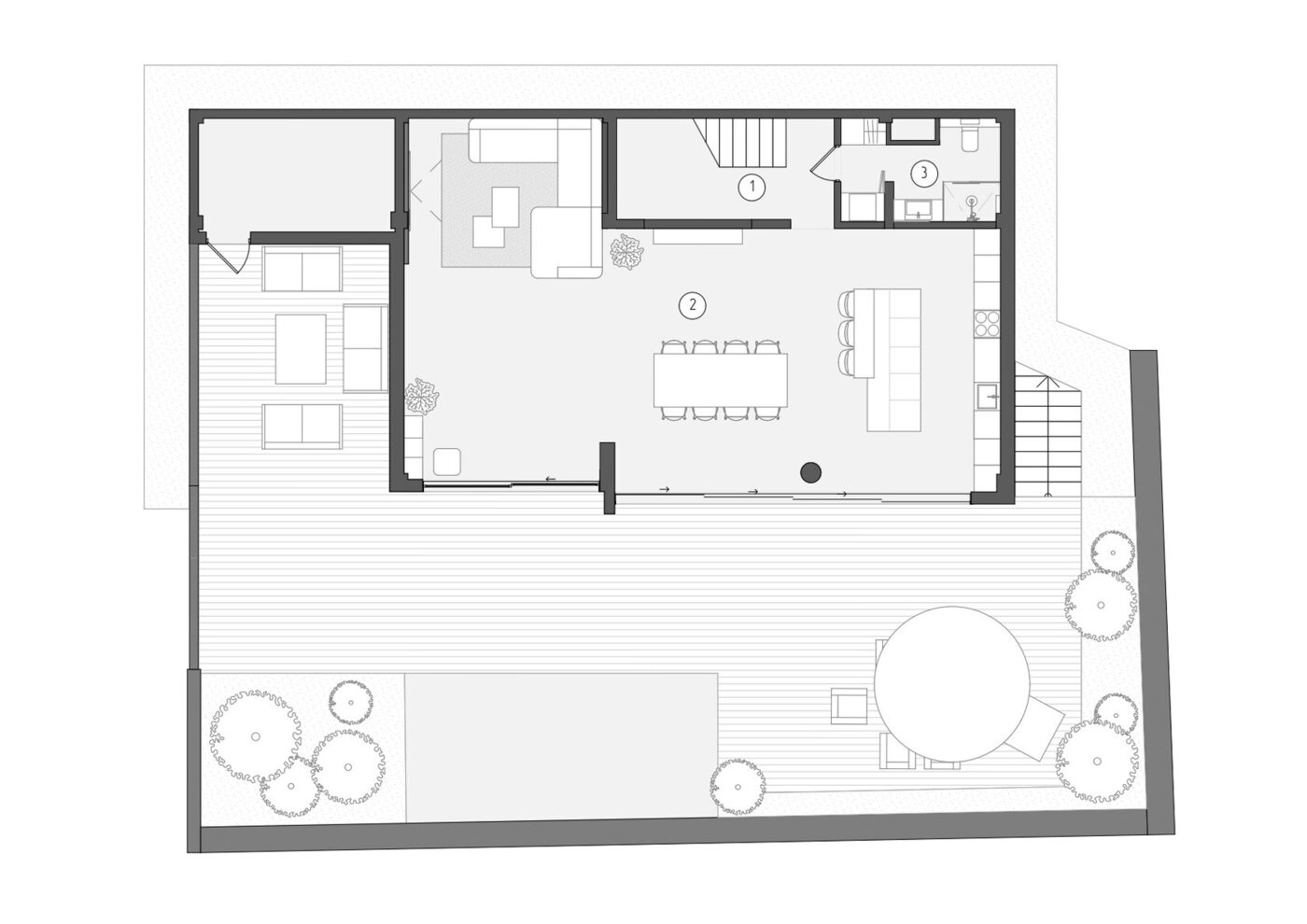
Планировки

Экспликация
  1. Коридор
  2. Кухня-спальня
  3. С/у

Экспликация
  1. Прихожая
  2. Коридор
  3. С/у общий
  4. Детская
  5. Кабинет
  6. Мастер-спальня
  7. Мастер-спальня С/у
  8. Мастер-спальня Гардероб
Время начать создавать Ваше уникальное пространство вместе!
Вы готовы?