Авторский коллектив:
Главный архитектор: Антон Кузьма
Архитектор проекта: Эмин Кюлян
Конструктивное решение: Йосип Кузьма
Видеообзор: Эмин Кюлян
Об объекте:
Стиль: Современное шале
Локация: Сочи, Россия
Год: 2025
Площадь: 250 м²
Участок с перепадом высот в 11 метров террассирован в 3 уровня:

  • на верхних двух расположено здание с благоустроенной площадкой перед домом и бассейном;
  • на нижнем зона для посадки растений с беседкой;
  • 4 парковочных места;
  • Входная зона с навесом;
  • Минималистичный дизайн фасадов и функциональное пространство;
  • Панорамные окна.
Villa NEOCHALET
Этот дом мы проектировали в комплексе с архитектурой
Villa NEOCHALET
Авторский коллектив:
Главный архитектор: Антон Кузьма
Архитектор проекта: Эмин Кюлян
Конструктивное решение: Йосип Кузьма
Видеообзор: Эмин Кюлян
Об объекте:
Стиль: Современное шале
Локация: Сочи, Россия
Год: 2025
Площадь: 250 м²
Участок с перепадом высот в 11 метров террассирован в 3 уровня:

  • на верхних двух расположено здание с благоустроенной площадкой перед домом и бассейном;
  • на нижнем зона для посадки растений с беседкой;
  • 4 парковочных места;
  • Входная зона с навесом;
  • Минималистичный дизайн фасадов и функциональное пространство;
  • Панорамные окна.
Этот дом мы проектировали в комплексе с архитектурой
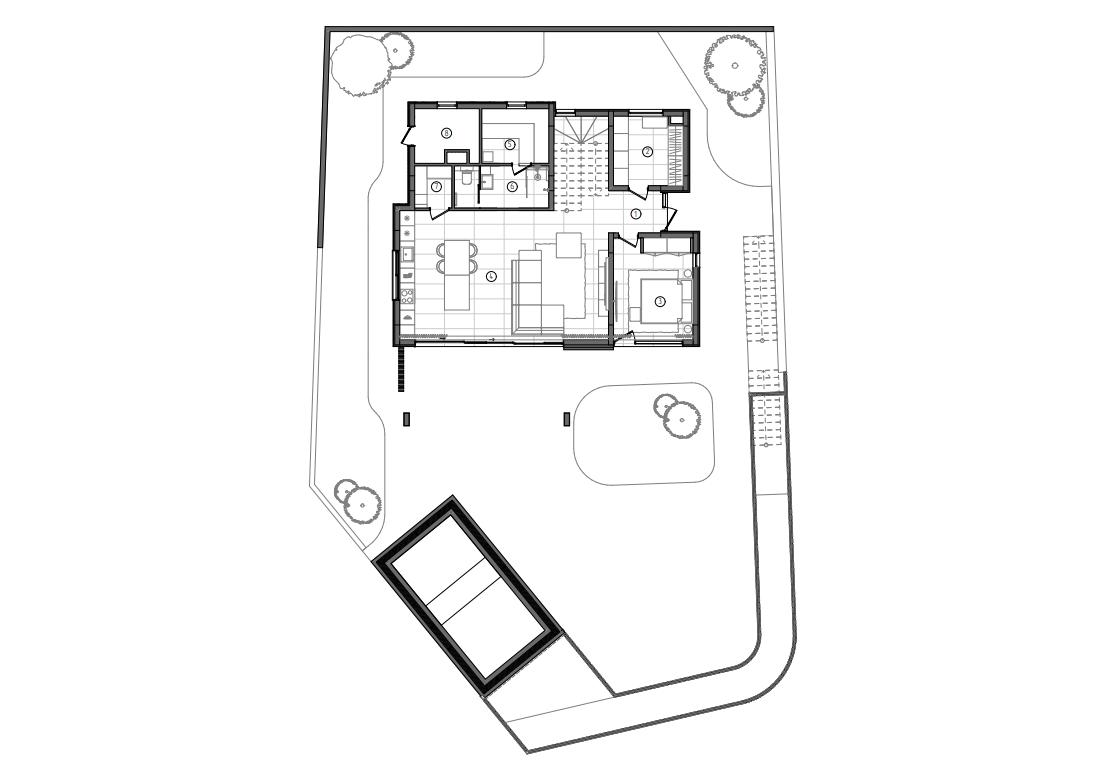
Планировки

Экспликация
  1. Прихожая
  2. Гардероб 1
  3. Гостевая спальня
  4. Кухня-гостиная
  5. Сауна
  6. С/у
  7. Кладовая
  8. Котельная

Экспликация
  1. Коридор
  2. Гардероб 1
  3. С/у 1
  4. Постирочная
  5. Мастер-спальня
  6. С/у 2
  7. Гардероб 2
  8. Детская 1
  9. Детская 2

Кухня-гостиная
Мастер-спальня
Мастер-спальня. Санузел
Детская
Спальня 1 этаж
Гостиная-кабинет
Санузел 1 этаж
Санузел 2 этаж
Места общего пользования
Время начать создавать Ваше уникальное пространство вместе!
Вы готовы?