Авторский коллектив:
Главный архитектор: Антон Кузьма
Архитектор проекта: Антон Кузьма
Конструктивные решения: Иосип Кузьма
Инженерные сети: Татьяна Демидова
Руководитель стройки: Антон Кузьма
Визуализация и видео обзор: Эмин Кюлян
Об объекте:
Площадь: 220 кв.м.
Стиль: барнхаус
Год: 2020
Площадь участка: 4.7 сотки
Расположение: Сочи
Этот дом мы проектировали в комплексе с дизайном интерьера
Участок:

  • Собственная, приватная, проработанная придомовая территория;
  • Уникальный дизайн, подчеркивающий индивидуальность владельца;
  • Индивидуальная продуманная, эргономичная планировка и набор помещений;
  • Применение качественных материалов отделки с применением природных фактур и пейзажный ландшафт сознает баланс и единение с окружающим ландшафтом;
  • 2 крытых парковочных места;
  • Зона патио с прекрасными панорамами и дообеденным солнцем.
На данном примере можно наглядно убедиться, что 220 метров общей площади дома на 4,7 сотках земли может хватить на комфортное проживание семьи из 5 человек. Дом состоит из 2 этажей и чердачного полуэтажа.
Террасирование участка позволило зонировать участок в 2 уровня. Нижний уровень служит парковкой, входной группой и зоной благоустройства. Верхний уровень полностью предоставлен приватной видовой зоной отдыха.
Barnhouse_120
Barnhouse_120
Авторский коллектив:
Главный архитектор: Антон Кузьма
Архитектор проекта: Антон Кузьма
Конструктивные решения: Иосип Кузьма
Инженерные сети: Татьяна Демидова
Руководитель стройки: Антон Кузьма
Визуализация и видео обзор: Эмин Кюлян
Об объекте:
Площадь: 220 кв.м.
Стиль: барнхаус
Год: 2020
Площадь участка: 4.7 сотки
Расположение: Сочи
Этот дом мы проектировали в комплексе с дизайном интерьера
Участок:

  • Собственная, приватная, проработанная придомовая территория;
  • Уникальный дизайн, подчеркивающий индивидуальность владельца;
  • Индивидуальная продуманная, эргономичная планировка и набор помещений;
  • Применение качественных материалов отделки с применением природных фактур и пейзажный ландшафт сознает баланс и единение с окружающим ландшафтом;
  • 2 крытых парковочных места;
  • Зона патио с прекрасными панорамами и дообеденным солнцем.
На данном примере можно наглядно убедиться, что 220 метров общей площади дома на 4,7 сотках земли может хватить на комфортное проживание семьи из 5 человек. Дом состоит из 2 этажей и чердачного полуэтажа.
Террасирование участка позволило зонировать участок в 2 уровня. Нижний уровень служит парковкой, входной группой и зоной благоустройства. Верхний уровень полностью предоставлен приватной видовой зоной отдыха.
Планировки

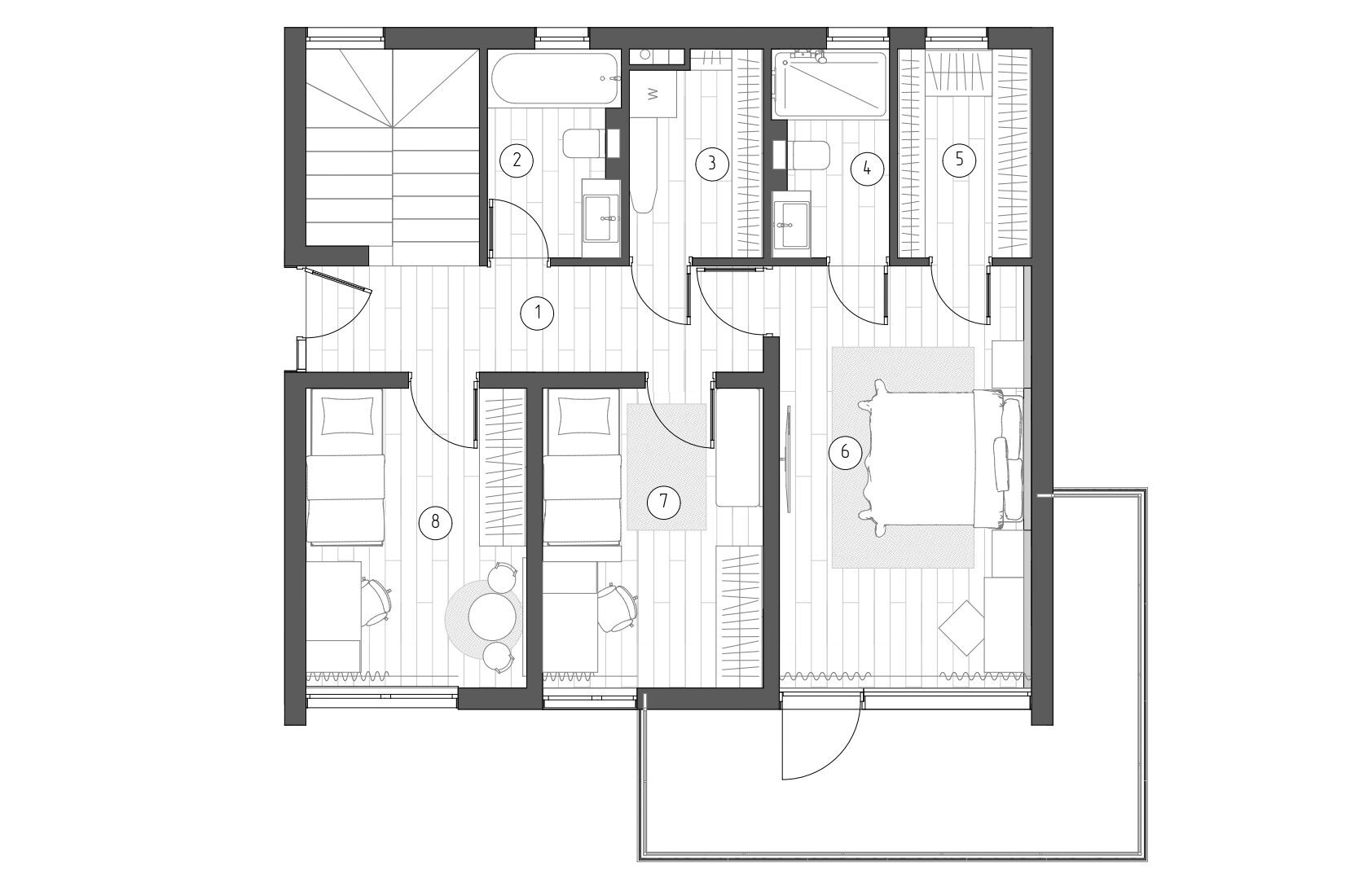
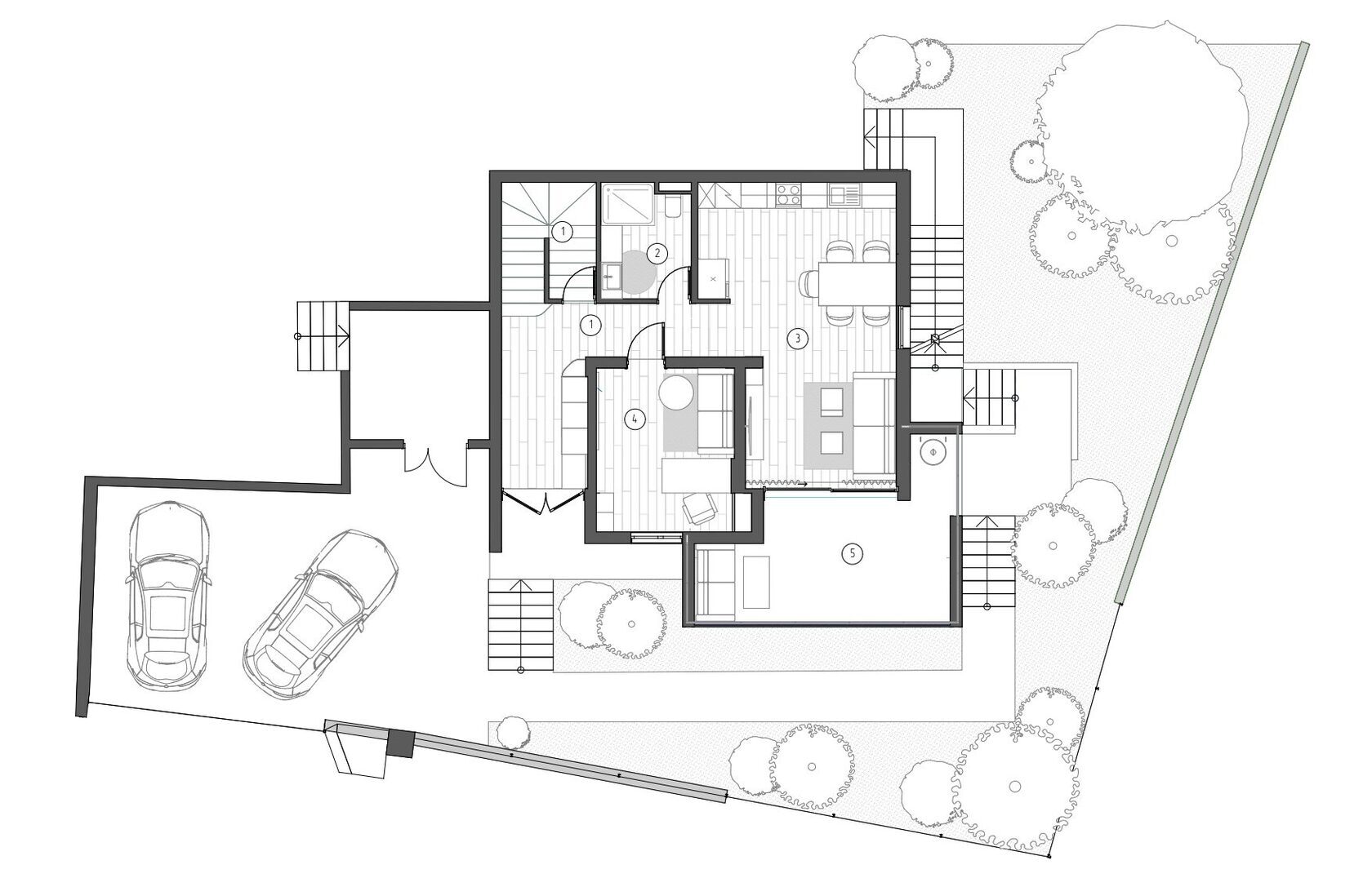
Экспликация
1.Коридор
1.Коридор
2.С/у
3.Кухня-гостиная
4.Кабинет
5.Крытая терраса

Экспликация
  1. Коридор
  2. С/у 1
  3. Гардероб 1
  4. С/у 2
  5. Гардероб 2
  6. Мастер-спальня
  7. Детская 1
  8. Детская 2
Время начать создавать Ваше уникальное пространство вместе!
Вы готовы?