Вилла Archinova Second Edition
Новый взгляд на проект, который стал классикой

Этот проект стал для нас особенным продолжением истории, начатой несколько лет назад.

Изначально на этом участке мы разработали концепцию одноэтажной виллы Archinova, которая осталась в статусе проекта — строительство так и не было начато.
Позже участок приобрела семья, которой была близка наша архитектурная идея. Им понравилась первая версия, но они захотели большего — и мы создали для них Archinova Second Edition.

Это уже двухэтажная вилла площадью 600 м², спроектированная индивидуально под запросы новых владельцев, с учётом их пожеланий к пространству, функциям и масштабу.
В проекте появились:

Открытый паркинг в цокольном этаже

Лифт, эргономично связывающий все уровни дома и обеспечивающий комфортное перемещение

Увеличенное панорамное остекление

Бионическая форма фасада с использованием современных материалов

Малированные стеклопакеты, подчёркивающие плавные линии архитектуры

Особое внимание мы уделили интеграции дома в участок площадью 10 соток, расположенный на крутом склоне с перепадом до 15 метров.
Наша задача заключалась в том, чтобы органично вписать застройку в рельеф, сохранив:

Приватность и эргономику всех функциональных зон

Чистые панорамные виды на Олимпийский парк, Сириус, Нижнюю Имеретинскую низменность, аэропорт Сочи и Черное море

Целостность архитектурного ансамбля в гармонии с природным окружением

Второй этаж выполнен с разноуровневыми потолками.
Ключевым композиционным элементом стала зона над мастер-спальней — пространство с высокими потолками и малированными стеклопакетами бионической формы, раскрывающееся в сторону заката и Олимпийского парка.

В кухне-гостиной создано светлое пространство с выходом к бассейну, террасе и панорамному виду на побережье.

На нижнем уровне расположена приватная зона отдыха с интегрированным в архитектуру водопадом и небольшим водоёмом для умиротворения и отдыха — место, где можно полностью расслабиться, оставаясь частью природного ландшафта.

Мы сохранили дух первой версии проекта, усилив его инженерными решениями, архитектурными акцентами и вниманием к деталям.

Archinova Second Edition — это синтез архитектуры, природы, инженерной мысли и индивидуальных пожеланий семьи.
Для нас — одна из самых выразительных и значимых работ последних лет.
ArchiNOVA II Edition
ArchiNOVA II Edition
Вилла Archinova Second Edition
Новый взгляд на проект, который стал классикой

Этот проект стал для нас особенным продолжением истории, начатой несколько лет назад.

Изначально на этом участке мы разработали концепцию одноэтажной виллы Archinova, которая осталась в статусе проекта — строительство так и не было начато.
Позже участок приобрела семья, которой была близка наша архитектурная идея. Им понравилась первая версия, но они захотели большего — и мы создали для них Archinova Second Edition.

Это уже двухэтажная вилла площадью 600 м², спроектированная индивидуально под запросы новых владельцев, с учётом их пожеланий к пространству, функциям и масштабу.
В проекте появились:

Открытый паркинг в цокольном этаже

Лифт, эргономично связывающий все уровни дома и обеспечивающий комфортное перемещение

Увеличенное панорамное остекление

Бионическая форма фасада с использованием современных материалов

Малированные стеклопакеты, подчёркивающие плавные линии архитектуры

Особое внимание мы уделили интеграции дома в участок площадью 10 соток, расположенный на крутом склоне с перепадом до 15 метров.
Наша задача заключалась в том, чтобы органично вписать застройку в рельеф, сохранив:

Приватность и эргономику всех функциональных зон

Чистые панорамные виды на Олимпийский парк, Сириус, Нижнюю Имеретинскую низменность, аэропорт Сочи и Черное море

Целостность архитектурного ансамбля в гармонии с природным окружением

Второй этаж выполнен с разноуровневыми потолками.
Ключевым композиционным элементом стала зона над мастер-спальней — пространство с высокими потолками и малированными стеклопакетами бионической формы, раскрывающееся в сторону заката и Олимпийского парка.

В кухне-гостиной создано светлое пространство с выходом к бассейну, террасе и панорамному виду на побережье.

На нижнем уровне расположена приватная зона отдыха с интегрированным в архитектуру водопадом и небольшим водоёмом для умиротворения и отдыха — место, где можно полностью расслабиться, оставаясь частью природного ландшафта.

Мы сохранили дух первой версии проекта, усилив его инженерными решениями, архитектурными акцентами и вниманием к деталям.

Archinova Second Edition — это синтез архитектуры, природы, инженерной мысли и индивидуальных пожеланий семьи.
Для нас — одна из самых выразительных и значимых работ последних лет.
Планировки

Экспликация 1 этаж
  1. Прихожая
  2. Гардероб
  3. Кабинет
  4. Серверная
  5. С/у
  6. Кухня-гостиная
  7. Кухня рабочая
  8. Кладовая
  9. Спальня персонала
  10. Гардероб
  11. С/у
  12. Котельная

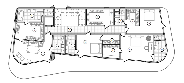
Экспликация 2 этаж
  1. Коридор
  2. Мастер-спальня
  3. Гардероб
  4. Ванная
  5. Ванная
  6. Спальня 2
  7. С/у
  8. Гардероб
  9. Постирочная
  10. Детская
  11. Гардероб
  12. С/у
  13. Спальня 1
  14. Гардероб
  15. С/у

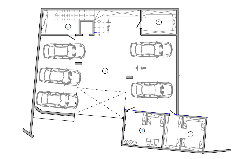
Экспликация цокольный этаж
  1. Гараж
  2. Тех.помещение бассейна
  3. Зоны хранения
  4. Сезонное хранение вещей
  5. Сезонное хранение вещей
Время начать создавать Ваше уникальное пространство вместе!
Вы готовы?