Авторский коллектив:
Главный архитектор: Антон Кузьма
Архитектор проекта: Эмин Кюлян
Конструктивные решения: Иван Милов, Иосип Кузьма
Дизайн интерьера: Виктория Маляр
Инженерные сети: Татьяна Демидова
Визуализация и видео обзор: Эмин Кюлян
Об объекте:
Стиль: минимализм
Площадь: 295 кв.м.
Год: 2019
Яркий и быть может идеальный пример, сочетания стиля «Минимализм» с функциональностью, современным подходом и креативным архитектурным решением.

Этот дом мы проектировали в комплексе с архитектурой
Villa Cube
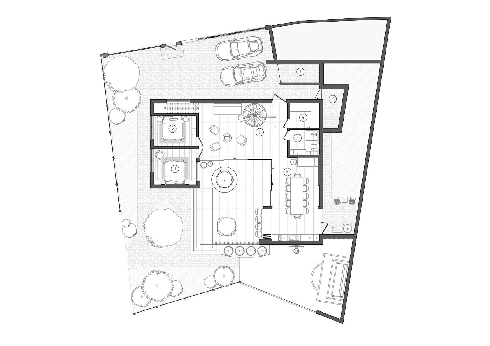
Планировки

Экспликация
  1. Кладовая
  2. Котельная
  3. Комната отдыха
  4. Хамам
  5. Душевая
  6. Спальня 1
  7. Спальня 2
  8. Кухня-столовая

Экспликация
  1. Спорт зал
  2. Терраса

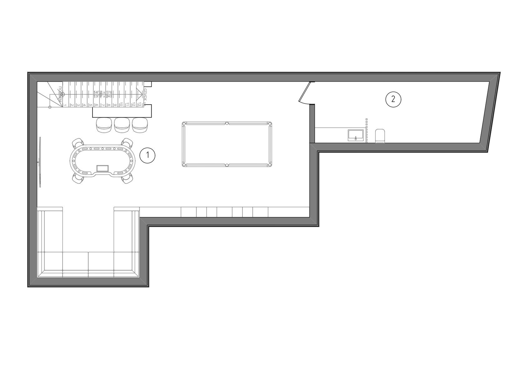
Экспликация
1.Бильярдная
1.Бильярдная
2.Тех.помещение
2.Тех.помещение
Кухня-гостиная
Бильярд
Спальня 1
Спальня 2
Санузел
Спортзал
Хаммам
Время начать создавать Ваше уникальное пространство вместе!
Вы готовы?