Авторский коллектив:
Главный архитектор: Антон Кузьма
Архитектор проекта: Эмин Кюлян
Конструктивные решения: Виталий Сидоренко
Дизайн интерьера: Виктория Маляр
Инженерные сети: Татьяна Демидова
Об объекте:
Стиль: минимализм
Площадь: 180 кв.м.
Год: 2020
Дом построен на участке площадью в 3 сотки, с перепадом высот и треугольной формы. Нам удалось сделать достаточно большую зону для отдыха и 2 машиноместа.
При проектировании и строительстве использована комбинированная технология несущих стен. Были применены деревянные перегородки второго этажа и железобетонные конструкции первого этажа, частично заглублённого в рельеф местности.
Triangular House
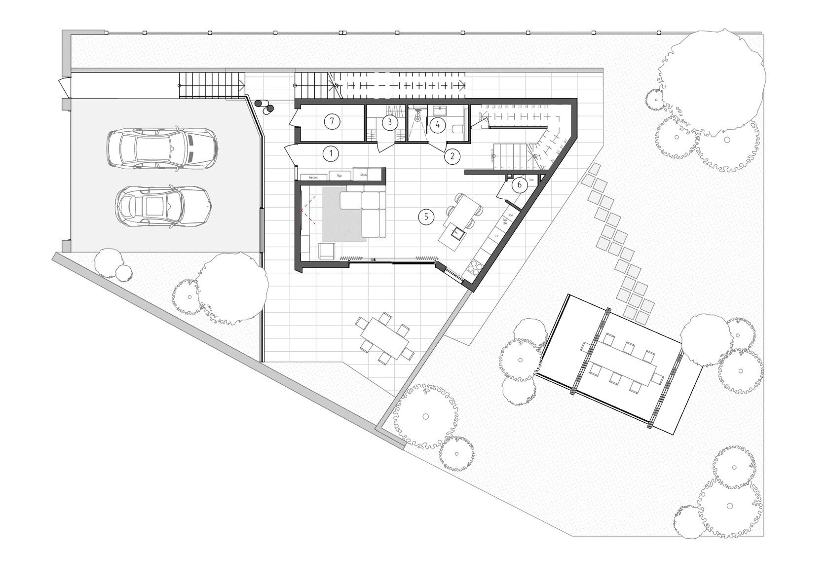
Планировки

Экспликация
  1. Прихожая
  2. Коридор
  3. Гардероб
  4. С/у
  5. Кухня-гостиная
  6. Кладовая
  7. Котельная

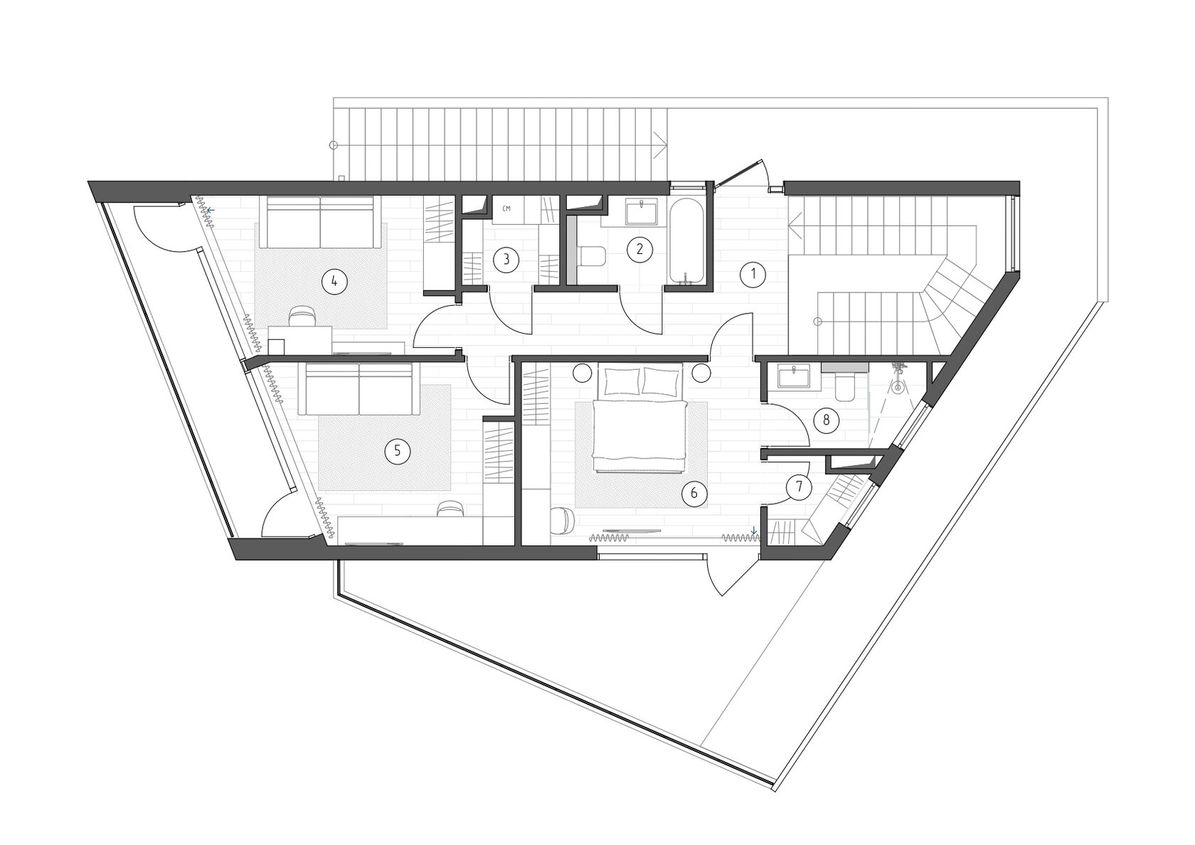
Экспликация
  1. Коридор
  2. С/у общий
  3. Постирочная
  4. Детская 1
  5. Детская 2
  6. Мастер-спальня
  7. Гардероб
  8. С/у МС
Кухня-гостиная
Мастер-спальня
Мастер-спальня. Санузел
Детская 1
Детская 2
Санузел 1
Санузел 2
Время начать создавать Ваше уникальное пространство вместе!
Вы готовы?