Авторский коллектив:
Главный архитектор: Антон Кузьма
Архитектор проекта: Эмин Кюлян
Конструктивные решения: Виталий Сидоренко
Дизайн интерьера: Виктория Маляр
Инженерные сети: Татьяна Демидова
Руководитель стройки: Антон Шевяков
Видео обзор: Эмин Кюлян
Об объекте:
Стиль: минимализм
Расположение: Адлер
Год: 2020
Площадь: 650 кв.м.
Этот дом мы проектировали в комплексе с дизайном интерьера
Жилой дом, приватные места отдыха и беседки с благоустроенной территорией расположили в два уровня таким образом, чтобы подземный паркинг перекрывал вид с нижней дороги на здание, и хозяева могли максимально насладиться панорамой на горы и море, но при этом сохранить приватность пребывания на участке с небольшим перепадом высот на склоне.

Постройка выглядит современно и оригинально, благодаря всем учтенным деталям, панорамному остеклению, террасе, эксплуатируемой кровле.

Фиброцементные плиты с имитацией деревянного планкена и белый фасад из большеформатного керамогранита Laminam делает дом крайне привлекательным выбором для ценителей авангардных решений.

Минимализм, сочетание керамогранита с имитацией натурального камня отражает чувства его хозяев.

Это стало основой лаконичного исполнения стиля дома. Дополняет ЭТОТ архитектурный ансамбль симбиоз эргономичной планировки, современных материалов природных фактур и больших панорамных окон, стирающих грань между внутренним и наружным пространством.
Casa Skiline
Планировки

Экспликация
  1. Прихожая
  2. Гардероб 1
  3. Кладовая
  4. Кухня-столовая
  5. Гостиная
  6. Спальня
  7. Хамам
  8. Душевая
  9. Коридор
  10. Постирочная
  11. С/у 1
  12. Котельная-кладовая
  13. СПА
  14. С/у 2
  15. Гардероб 2

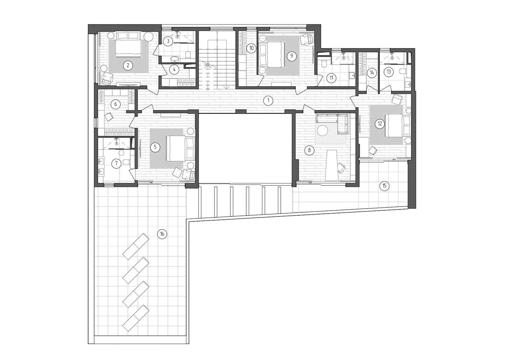
Экспликация
  1. Коридор
  2. Спальня 1
  3. С/у 1
  4. Гардероб 1
  5. Мастер-спальня
  6. Гардероб 4
  7. С/у 4
  8. Кабинет
  9. Спальня 2
  10. Гардероб 2
  11. С/у 2
  12. Спальня 3
  13. С/у 3
  14. Гардероб 3
  15. Балкон
  16. Терраса

Экспликация
  1. Гараж
  2. Тренажерный зал
  3. Душевая
  4. С/у
Время начать создавать Ваше уникальное пространство вместе!
Вы готовы?